Bydgoszcz, Centrum

Mieszkanie na sprzedaż

Opis nieruchomości

Niezwykła okazja! Mieszkanie  z loggią w prestiżowej lokalizacji w Bydgoszczy!

W NOVATOR NIERUCHOMOŚĆI MACIE PAŃSTWO MOŻLIWOŚĆ NABYCIA WYJĄTKOWEJ NIERUCHOMOŚCI W DZIELNICY MUZYCZNEJ.

Mieszkanie w odrestaurowanej kamienicy bez nadzoru konserwatorskiego.
Dużym atutem jest czynsz, który wynosi tylko 376 zł!
Kamienica została wzniesiona na przełomie lat 1910–1915. Jej projekt został wykonany przez uznanego bydgoskiego architekta Rudolfa Kerna.
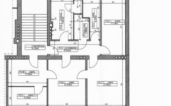
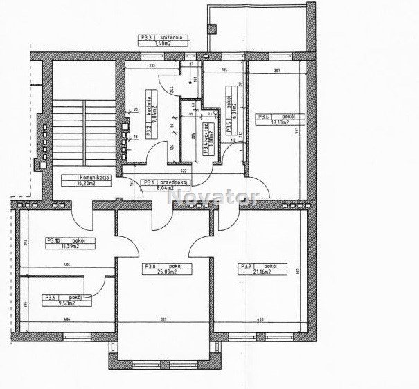
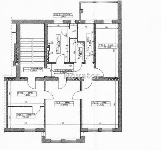
Powierzchnia całkowita nieruchomości - 123,18 m2:

 
113,77 m2 - mieszkanie,

6,86 m2 - balkon,

2,55 m2 - piwnica.

W skład mieszkania wchodzą:

pokój 01 - 25,09 m2,

pokój 02 - 20,55 m2,

pokój 03 - 20,92 m2,

pokój 04 - 17,13 m2,

pokój 05 - 6,31 m2,

mały pokój - 6,14 m2,

kuchnia - 9,84 m2,

spiżarnia - 1,40 m2,

łazienka z w.c. - 3,88 m2,

hol / korytarz - 8,04 m2,

Z pokoju 04 (17,13 m2) od strony zachodniej jest wyjście na balkon o powierzchni 6,86 m2.

Do nieruchomości przypisana jest piwnica o powierzchni 2,55 m2.
W salonach i sypialni piece kaflowe z wkładkami grzejnymi. Możliwe ogrzewanie gazowe. Woda opomiarowana. Prąd 230V. Okna PCV. Możliwość podłączenia światłowodu oraz kablówki.


Kamienica przeszła gruntowny remont. W wyniku prac modernizacyjnych odrestaurowano elewacje, zachowując przy tym oryginalne detale architektoniczne, charakterystyczne dla secesji. Wymieniono w całości dachówkę ceramiczną na nową, wyremontowano wszystkie klatki schodowe. Dzięki temu budynek łączy historyczny charakter z nowoczesnymi standardami technicznymi i komfortem użytkowania. Obecnie kamienica prezentuje się bardzo atrakcyjnie.
Polecam i zapraszam na prezentację!
Beata Składanowska
784-189-339

Nota prawna

Opis oferty zawarty na stronie internetowej sporządzany jest na podstawie oględzin nieruchomości oraz informacji uzyskanych od właściciela, może podlegać aktualizacji i nie stanowi oferty określonej w art. 66 i następnych K.C.

Szczegóły oferty

Symbol oferty NOV-MS-152718
Powierzchnia 114,00 m²
Liczba pokoi 4
Piętro 1
Rodzaj budynku kamienica
Standard
Liczba pięter w budynku 3
Piwnica 7,83 m²
Stan lokalu do remontu
Stan prawny Własność
Mies. czynsz admin. 325 PLN
Balkon loggia

Kalkulator kredytowy

PLN
%
Wysokość raty

Kalkulator kosztów

PLN
PLN
PLN
PLN
PLN
PLN
%
PLN
Podatek od czynności cywilno-prawnych
Taksa notarialna (opłata notarialna)
VAT od taksy notarialnej (opłaty notarialnej)
Wniosek do WKW
VAT od wniosku do WKW
Prowizja agencji nieruchomości
VAT od prowizji agencji nieruchomości
Wypisy aktu notarialnego - około
RAZEM (cena + opłaty)

Podobne oferty

mieszkanie na sprzedaż - Bydgoszcz, Czyżkówko

mieszkanie na sprzedaż

Bydgoszcz, Czyżkówko
2 pokoje 49,00 m2 11 836,73 zł/m2
mieszkanie na sprzedaż - Bydgoszcz, Górzyskowo

mieszkanie na sprzedaż

Bydgoszcz, Górzyskowo
3 pokoje 70,64 m2 11 041,90 zł/m2
oferta na wyłączność
mieszkanie na sprzedaż - Bydgoszcz, Bartodzieje

mieszkanie na sprzedaż

Bydgoszcz, Bartodzieje
4 pokoje 86,00 m2 10 104,65 zł/m2
nowa oferta
mieszkanie na sprzedaż - Bydgoszcz, Śródmieście

mieszkanie na sprzedaż

Bydgoszcz, Śródmieście
3 pokoje 72,00 m2 12 069,44 zł/m2

Napisz do nas

Proszę wypełnić to pole
Proszę wypełnić to pole
Proszę wypełnić to pole
Proszę wypełnić to pole
Trwa wysyłanie...

Ta strona wykorzystuje pliki cookies w celach statystycznych oraz w celu dostosowania naszych serwisów do indywidualnych potrzeb klientów. Zmiany ustawień dotyczących plików cookie można dokonać w dowolnej chwili modyfikując ustawienia przeglądarki. Korzystanie z tej strony bez zmian ustawień dotyczących cookies oznacza, że będą one zapisane w pamięci urządzenia.

rozumiem